Khi nghe đến việc lắp đặt thang máy gia đình, nhiều người thường cho rằng đây là khoản đầu tư xa xỉ. Nhưng liệu giá thang máy có thực sự cao như bạn nghĩ? Thực tế, mức giá phụ thuộc vào nhiều yếu tố như công nghệ, kích thước, tải trọng, thương hiệu và thiết kế. Quan trọng hơn, thang máy không chỉ là một thiết bị tiện ích mà còn là giải pháp nâng tầm giá trị cho không gian sống và cải thiện chất lượng cuộc sống.
Hãy cùng khám phá chi tiết để xem liệu chi phí này có thực sự “cao” khi so sánh với những lợi ích mà nó mang lại!
GIÁ THANG MÁY GIA ĐÌNH BAO NHIÊU?
Thang máy gia đình tùy theo phân khúc (liên doanh hay nhập khẩu), tải trọng (thang máy 320kg hay 450kg…), Số tầng phục vụ và thương hiệu nhà sản xuất mà giá giao động từ 280.000.000 VNĐ trở lên.

Báo giá thang máy loại Liên doanh
Đối với giá thang máy gia đình liên doanh giá chỉ 1/3 với thang máy nhập khẩu nguyên chiếc. Thang máy liên doanh là sự lựa chọn mà gần như 90% người Việt đang dùng. Với những ưu điểm như chi phí hợp với túi tiền, tính linh hoạt cao, chất lượng tương đương thang nhập (ở phân khúc dưới 15 tầng)
Hiện nay, phân khúc thang máy gia đình liên doanh của cty Thang máy Phương Đông sử dụng linh kiện nhập khẩu đồng bộ Hàn Quốc đặc biệt là máy kéo và tủ điện từ thương hiệu thang máy FUJI nổi tiếng tỉ lệ thiết bị đồng bộ Hàn Quốc chiếm đến 80% cây thang.
- Động cơ: FUJI nhập khẩu từ Hàn Quốc
- Tủ điện: Tủ FUJI nhập khẩu nguyên chiếc từ Hàn Quốc
- Rail, cáp điện, cáp tải, Photocell, nút nhấn, thắng cơ (Govecno) xuất xứ Hàn Quốc.
- Cabin: Inox nhập khẩu, được gia công tại Nhà máy theo tiêu chuẩn.


thang máy gia đình 300kg
Đối với thang máy gia đình cho 4 người đi thì tải trọng phù hợp là 300kg đến 350kg (mỗi lần thang máy di chuyển có thể chở được 4-5 người). Vậy thang máy gia đình 320kg bao nhiêu tiền.
Theo như khảo sát khách hàng thì chi phí thang máy gia đình 320kg vào năm 2025-2026 thì mức chi phí trung bình mà chủ đầu tư hoặc chủ nhà phải chi trả trọn gói từ 280.000.000 đến 350.000.000. Giá thang máy còn phụ thuộc vào số điểm dừng, nội thất đi kèm, tốc độ của thang máy và vị trí lắp đặt.
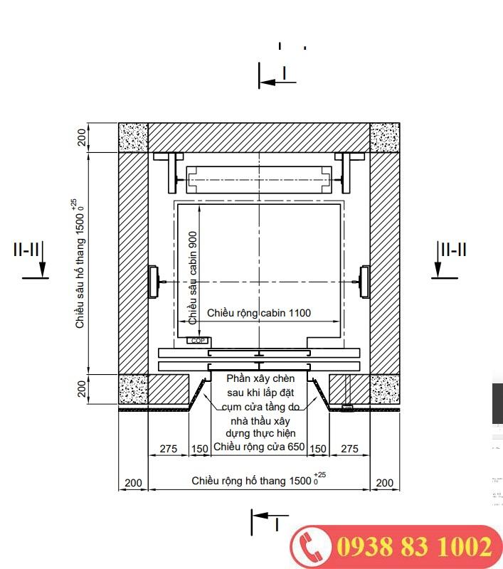
- Hố thang : 1500mm x 1500mm.
- Cabin (dài x rộng x sâu): 1100mm x 900mm x 2200mm.
- Chiều rộng cửa 650mm.
- Hố PIT: 1400mm


Chi phí thang máy gia đình 450kg bao nhiêu
Thang máy liên doanh 450kg đây là tải trọng được nhiều người sử dụng cho nhà ở, khách sạn, văn phòng cho thuê… mỗi lần chở được khoảng 6 -7 người và số tiền mà chủ đầu tư bỏ ra cũng tương đối phù hợp với giá tầm 290.000.000- 370.000.000
Giá thang máy gia đình 450kg còn phụ thuộc các yếu tố: thiết kế hố thang, hố pít, vật liệu nội thất trong cabin… Thang máy liên doanh 450kg thì kích thước thiết kế tiêu chuẩn là:
- Hố thang à: 1800mm x 1600mm.
- Cabin (dài x rộng x sâu): 1400mm x 1000mm x 2200mm.
- Chiều rộng cửa 800mm.
- Hố PIT: 1400mm


>> Xem thêm: Kích thước thang máy
Giá thang máy gia đình không hố pit
Hiện nay có một thuật ngữ rất quen thuộc là thang máy không hố pit, tuy nhiên đại đa số mọi người đều chưa hiểu rõ thang máy không hố pit là thế nào.
Đối với dòng thang nhập khẩu: Thang máy không hố pit hoạt động chủ yếu với công nghệ trục vít, sử dụng động cơ điện, dây curoa và hệ thống trục vít. Hệ thống bánh răng sẽ vận hành với sự ăn khớp 100% giúp cabin di chuyển lên xuống một cách nhịp nhàng, an toàn. Và loại thang công nghệ trục vít này là thang nhập khẩu với giá thành khá cao.
Thang liên doanh không cần hố pit là những dòng thang phi tiêu chuẩn như thang homelift, thang máy kính dành cho các gia đình cải tạo hoặc diện tích nhỏ. Với thang liên doanh này phải có hố PIT và thường hố Pit tối thiểu từ 300-400mm.
Giá thang máy gia đình homelift thường cao hơn so với dòng thang tiêu chuẩn vì 3 chi phí sau:
- Cải tạo phần xây dựng như cắt sàn, đục tường, xây tô, sơn nước…
- Giá thang homelift cao hơn so với thang tiêu chuẩn do yêu cầu cao hơn về kỹ thuật.
- Chi phí lắp dựng khung thép và vật liệu hoàn thiện xung quanh(kính cường lực hoặc alu).

thang máy gia đình 3 tầng bao nhiêu
Thang máy gia đình 3 tầng là giải pháp thường thấy trong các ngôi nhà phố hoặc biệt thự cao từ 2-3 tầng. Chi phí thang máy gia đình nhà 3 tầng phụ thuộc vào tải trọng và các yếu tố khác, nhưng thường dao động từ 280 triệu đến 330 triệu đồng cho thang máy tải trọng 300kg.
Giá thang máy gia đình 4 tầng bao nhiêu
Nếu nhà bạn có 4 tầng, chi phí lắp đặt thang máy gia đình 4 tầng cao hơn từ 10-20 triệu so với thang máy 3 tầng. Kinh phí thang máy gia đình nhà 4 tầng từ 290 triệu đến 350 triệu đồng cho loại 300kg.
thang máy gia đình 5 tầng
Thang máy gia đình 5 tầng là lựa chọn của nhiều gia đình có biệt thự lớn hoặc các ngôi nhà cao tầng. Giá thang máy gia đình nhà 5 tầng liên doanh từ 300 triệu đến 420 triệu đồng cho loại 300kg. Giá cả có thể thay đổi tùy theo độ phức tạp của kiến trúc, các yêu cầu đặc biệt về thiết kế, hoặc các tính năng như thang máy không phòng máy, thang máy kính,…
Thêm 01 điểm dừng giá tăng 10 -20 triệu
- Thêm 1 bộ cửa tầng.
- Phát sinh thêm chi phí lắp đặt.
- Có thể tăng tốc độ từ 60 lên 90 mét / phút (Nếu tòa nhà từ 7 tầng).
- Thêm 1 tầng thì chiều cao cũng lớn hơn đồng nghĩa việc độ dài cáp tải, cáp điện , rail cũng phải tăng.

Giá thang máy nhập khẩu
Đối với dòng thang máy gia đình nhập khẩu như Mitsubishi, FuJi, Kone, Otis… thì giá cao từ 2-3 lần so với giá thang máy liên doanh có cùng tốc độ và tải trọng. Tương đương với mức giá từ 900 triệu. Tuy nhiên nhược điểm của thang máy nhập khẩu là kích thước hố phải xây dựng theo đúng thông số của nhà sản xuất, thời gian nhập hàng tầm 4-5 tháng, chi phí bảo trì và thay thế linh kiện cao và yêu cầu tay nghề và kinh nghiệm của đội ngũ lắp đặt để thang máy có thể hoạt động tốt nhất.
thang máy gia đình phụ thuộc vào những yếu tố nào

- Số điểm dừng (stop) hay số tầng phục vụ của thang máy: Số lượng điểm dừng ảnh hưởng trực tiếp đến giá thang máy.
- Tải trọng của thang máy: Tùy theo nhu cầu của khách hàng mà công ty thang máy sẽ tư vấn tải trọng phù hợp.
- Loại thang máy có phòng máy hay không có phòng máy, thường thì thang máy không phòng máy cao hơn so với thang có phòng máy do sử dụng động cơ từ thế hệ mới tiết kiệm điện năng tiêu thụ. Bên cạnh đó, loại động cơ và công suất động cơ cũng ảnh hưởng đến chi phí thang máy.
- Nguyên liệu vách buồng thang: Inox 304, Laminate, kính cường lực… Tùy theo vật liệu vách cabin mà giá thang máy cũng sẽ khác nhau.
- Các tính năng khác: các hệ thống nhận dạng vân tay, quét thẻ từ, màn hình hiển thị có cảm ứng hay không, kiểu cách thảm sàn thang máy…
5 lý do khách hàng yên tâm khi chọn thang máy Phương Đông

- Là một trong số ít công ty thang máy có hơn 18 năm kinh nghiệm trong lĩnh vực cung cấp và lắp đặt thang máy tại Việt Nam. Cty thang máy Phương Đông được thành lập từ 2006 đến nay. Chúng tôi tự hào là đối tác của những thương hiệu thang máy nổi tiếng như Mitsubishi, Fuji… và nhiều Tập đoàn TTC, RICONS, UNICONS, Phát Đạt. Với các công trình tiêu biểu như Bệnh Viện Ung Bứu TPHCM, Bệnh Viện Đại học Y Dược TPHCM, Văn Phòng Bộ xây dựng, trường Đại học Cần Thơ…
- Tại văn phòng chúng tôi có thang máy mẫu, có phòng trưng bày sản phẩm linh kiện thang máy nhập khẩu như máy kéo, tủ điện, rail dẫn hướng,…nhà xưởng sản xuất thang máy theo tiêu chuẩn ISO, đội ngũ nhân viên có tay nghề cao đáp ứng được tất cả các nhu cầu của khách hàng.
- Thang máy Phương Đông với các thiết bị được nhập khẩu chính hãng và đồng bộ (Fuji Hàn Quốc) nên thang máy hoạt động ổn định, bền bỉ hơn.
- Dịch vụ hậu mãi được khách hàng đánh giá cao, mỗi quận huyện tại TP.HCM cũng như các tỉnh chúng tôi đều có đội ngũ bảo trì 24/24 nhằm kịp thời hỗ trợ cho khách hàng trong thời gian nhanh nhất.
- Thang máy Phương Đông luôn cập nhật và áp dụng các tiêu chí an toàn cho mọi sản phẩm theo TC quy định của nhà nước cho quá trình sản xuất lắp đặt, bảo hành bảo trì.

