Thang máy gia đình không chỉ giúp việc di chuyển giữa các tầng trở nên dễ dàng mà còn nâng tầm giá trị ngôi nhà. Với thiết kế nhỏ gọn, thang máy có thể lắp đặt trong nhiều không gian khác nhau, kể cả nhà phố, biệt thự hay nhà cải tạo.
- Tải trọng phổ biến: 250kg – 450kg (2 – 6 người)
- Kích thước linh hoạt: Từ 1m² – 1.5m² phù hợp với mọi diện tích
- Công nghệ hiện đại: Vận hành êm ái, tiết kiệm điện năng
Dù nhà nhỏ hay lớn, bạn đều có thể sở hữu một chiếc thang máy tiện nghi!
cấu tạo thang máy gia đình
Cấu tạo của thang máy bao gồm:
- Máy kéo
- Tủ điều khiển thang máy
- Rail dẫn hướng cabin và đối trọng
- Thắng cơ (Bộ giới hạn tốc độ – Governor)
- Cáp của bộ hạn chế tốc độ
- Giảm chấn
- Cửa cabin và Cửa tầng
- Cabin thang máy và Đối trọng

Báo giá thang máy gia đình
Giá thang máy gia đình hiện nay giao động từ 280 triệu đến hơn 1 tỷ đồng. Tùy theo loại thang nhập khẩu hay thang liên danh. Và giá thang máy còn phụ thuộc vào nhiều yếu tố như:
- Xuất xứ và thương hiệu thang máy.
- Thông số kĩ thuật thang máy: bao gồm: Kích thước hố thang máy, có bao nhiêu điểm dừng, tải trọng thang máy bao nhiêu, thang máy có phòng máy hay không có phòng máy…
- Nội thất trang trí như Cabin hoa văn vàng, vách kính, tranh kính nổi 3D
Giá thang máy gia đình liên doanh
Thang liên doanh là dòng sản phẩm được lắp ráp trong nước với các linh kiện nhập khẩu từ các thương hiệu lớn như Mitsubishi, Fuji, Montanari… Loại thang này vừa đảm bảo chất lượng, vừa tối ưu chi phí, giúp nhiều gia đình có thể sở hữu thang máy với giá hợp lý hơn.
- Thang máy gia đình 250kg – 350kg (3 – 5 tầng): 270 – 350 triệu VNĐ
- Thang máy gia đình 400kg – 500kg (5 – 7 tầng): 350 – 450 triệu VNĐ
- Thang máy gia đình trên 500kg (7 tầng trở lên): 450 – 600 triệu VNĐ
Lưu ý: Giá trên chỉ mang tính tham khảo, có thể thay đổi tùy theo từng đơn vị cung cấp, địa điểm lắp đặt và các yêu cầu riêng của khách hàng.
Giá thang máy gia đình Nhập khẩu
Thang máy nhập khẩu nguyên chiếc từ các thương hiệu danh tiếng như Mitsubishi, Otis, Schindler, và Kone cũng là lựa chọn cao cấp dành cho những khách hàng yêu cầu chất lượng hoàn hảo
Thang máy gia đình nhập khẩu có giá dao động từ 800 triệu – 2,5 tỷ đồng, tùy thuộc vào thương hiệu, tải trọng, số tầng và công nghệ vận hành.
Lưu ý: Giá có thể thay đổi tùy vào địa điểm lắp đặt, số tầng, mẫu mã và tính năng đi kèm

kích thước thang máy gia đình
Việc nắm được chính xác kích thước thang máy sẽ giúp cho chủ nhà cũng như kiến trúc sư lựa chọn được đúng loại thang, tải trọng phù hợp với nhu cầu sử dụng cũng như diện tích xây dựng. Kích thước thang máy gia đình bao gồm các thông số như kích thước hố thang máy (rộng x dài), kích thước cửa (rộng x cao), kích thước hố pit (rộng x dài x sâu).

Kích thước thang máy mini 300 - 350kg cho 4-5 người
Thang máy gia đình 300kg giúp di chuyển tối đa từ 4-5 người cho 1 lần sẽ là tối ưu với nhu cầu để ở hoặc nghỉ dưỡng cho nhà phố, biệt thự. Với nhu cầu đó thì kích thước thang máy 300 – 350kg cũng khá nhỏ nhằm mục đích tiết kiệm diện tích và tạo điểm nhấn cho căn nhà. Chính vì vậy mà khi có nhu cầu lắp đặt thang máy cho nhà ở thì chúng ta nên tham khảo các kích thước sau đây
thang máy 300kg
- Kích thước hố thang (lọt lòng): 1400mm (rộng) x 1400mm (sâu)
- Kích thước cabin: 1000mm (rộng) x 800mm (sâu) x 2200mm (cao)
- Cửa thang: 600mm (rộng) x 2100mm (cao)
- Hố pít thang máy: Từ 1200 – 1400mm
- OH (Là kích thước từ sàn bên dưới cùng có cửa thang máy cho tới vị trí trên cùng của hố thang máy có móc treo): 4500mm
Thang máy 350kg
- Kích thước hố thang(lọt lòng): 1500mm (rộng) x 1500mm (sâu)
- Kích thước phòng cabin: 1100mm (rộng) x 900mm (sâu) x 2200mm (cao)
- Cửa thang máy: 650mm (rộng) x 2100mm (cao)
- Hố pít thang máy: từ 1200 -1400mm
- OH (Là kích thước từ sàn bên dưới cùng có cửa thang máy cho tới vị trí trên cùng của hố thang máy có móc treo): 4600mm.

Kích thước thang máy 450kg cho 6-7 người
Trường hợp quý khách lắp đặt thang máy 450kg thì nên cân nhắc vừa ở vừa cho thuê hoặc kinh doanh, với tải trọng 450kg tối đa 6-7 người di chuyển. Với các toàn nhà cho thuê văn phòng hoặc nhà trọ thì đây là sự lựa chọn tối ưu.
Trường hợp 1:
- Kích thước hố thang(lọt lòng): 1800mm (rộng) x 1600mm (sâu)
- Kích thước phòng cabin: 1400mm (rộng) x 1200mm (sâu) x 2200mm (cao)
- Cửa thang máy: 800mm (rộng) x 2100mm (cao)
- Hố pít thang máy: từ 1200 -1400mm
- OH (Là kích thước từ sàn bên dưới cùng có cửa thang máy cho tới vị trí trên cùng của hố thang máy có móc treo): 4600mm.
Trường hợp 2:
- Kích thước hố thang(lọt lòng): 1700mm (rộng) x 1700mm (sâu)
- Kích thước phòng cabin: 1300mm (rộng) x 1100mm (sâu) x 2200mm (cao)
- Cửa thang máy: 750mm (rộng) x 2100mm (cao)
- Hố pít thang máy: từ 1200 -1400mm
- OH (Là kích thước từ sàn bên dưới cùng có cửa thang máy cho tới vị trí trên cùng của hố thang máy có móc treo): 4600mm.
Kích thước thang máy gia đình nhỏ nhất

Hiện nay, ngoài dòng thang máy gia đình tiêu chuẩn tải 320 – 450kg thì còn các kích thước thang máy phi tiêu chuẩn khác như kích thước thang máy mini, hoặc thang máy homelift cho các nhà cải tạo.
Với diện tích xây dựng nhỏ hẹp thì đòi hỏi thang máy cũng phải được thiết kế như thế nào để tiết kiệm được diện tích và không gian. Hiểu được điều này các chuyên gia trong lĩnh vực thang máy đã thiết kế và cho ra đời dòng thang máy gia đình mini(homelift) với diện tích xây dựng chỉ khoảng 1m2 nhưng vẫn đáp ứng được độ an toàn cũng như giải quyết được bài toán di chuyển cho mọi người sống ở những ngôi nhà từ 3 tầng trở lên.
Nếu quý khách có nhu cầu tham khảo kích thước thang máy mini hoặc thang máy homelift vui lòng liên hệ hotline của chúng tôi để được tư vấn và báo giá chi tiết.

Phân loại thang máy
Thang không phòng máy
Thang máy không phòng máy là thang máy sử dụng động cơ chuyên dụng không có hộp số dùng nam châm vĩnh cửu, hố thang được tối ưu về diện tích xây dựng, tiết kiệm điện năng đến 40%.
ƯU ĐIỂM
- Về thi công xây dựng hố thang, đây là loại thang tiết kiệm không gian xây dựng do không cần phải đổ sàn phòng máy nên có lợi cho những công trình bị hạn chế về chiều cao.
- Tiết kiệm điện năng lên đến 40% so với thang máy có phòng máy
- Loại thang này dùng loại máy kéo không hộp số với sự hỗ trợ của nam châm vĩnh cửu cho nên cần phải đổ dầu máy trong suốt quá trình hoạt động từ đó giúp giảm chi phí vận hành và góp phần bảo vệ môi trường.
- Giảm tiếng ồn: Do động cơ của thang này là động cơ không có hộp số, hoàn toàn không còn sử dụng kết cấu giảm tốc bằng bánh răng nên giúp thang vận hành êm hơn, ít tiếng ồn hơn.

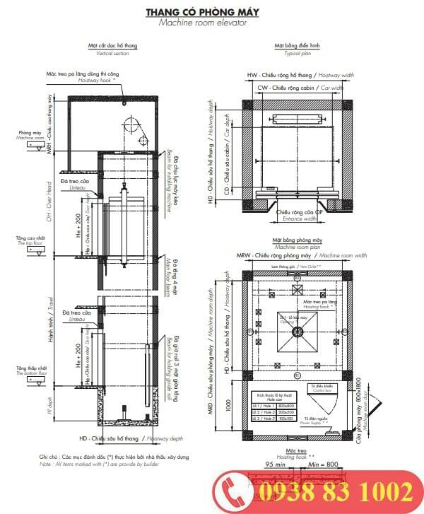
Thang có phòng máy
Phòng máy thang máy hay còn gọi là phòng kỹ thuật là không gian để bố trí, lắp đặt máy kéo, tủ điều khiển, bộ khống chế vượt tốc. Chiều cao phòng máy tùy thuộc vào tải trọng và tốc độ, thang có tải trọng lớn và tốc độ cao thì phòng máy càng cao.
Thang máy có phòng máy là loại thang có phòng kỹ thuật ở trên đỉnh hố thang máy, và phải có Sàn phòng máy (sàn thao tác).
Ưu điểm
- Tỷ số truyền của thang máy có phòng máy là 1:1 nên cáp ngắn, số lượng puly ít. Vì thế, tối ưu được chi phí bảo trì, giúp quá trình bảo dưỡng đơn giản hơn. Đồng thời, dễ lắp đặt thang máy và thay thế thiết bị sau nhiều năm sử dụng.
- Phương án cứu hộ cũng thuận tiện và đơn giản hơn trong trường hợp mất điện, kể cả khi không có đội cứu hộ kịp thời.
Thang máy liên doanh
Thang máy liên doanh là dạng thang máy kết hợp sản xuất giữa các linh kiện trong nước và một số linh kiện được nhập khẩu từ nước ngoài. Cụ thể các phần chi tiết thiết bị như máy kéo, hệ thống điều khiển, rai, cáp …từ các thương hiệu nổi tiếng như Mitsubishi, Fuji, Montanari, Schindler,…Và chỉ có phần cabin là được gia công tại Việt Nam.
Ưu điểm
- Linh hoạt với mọi công trình.
- Giá thành hợp lý
- Thời gian chờ đợi lắp đặt nhanh chóng
- Chi phí bảo trì – bảo dưỡng thang máy thấp
- Thiết bị linh hoạt, có sẵn
Hiện nay trên thị trường thang máy liên doanh đang chiếm thị phần cao hơn tại phân khúc dành cho gia đình, để đạt được điều đó là nhờ chất lượng thang liên doanh trong những năm qua đã được cải thiện rất nhiều, dần thu hẹp khoảng các với thang nhập. Giá thành hợp lý chỉ bằng 1/3 thang ngoại nhập, chất lượng đảm bảo, thang máy gia đình liên doanh đã và đang là sự lựa chọn hàng đầu cho các công trình tư nhân.

Thang máy gia đình không cần hố pit

Hố PIT thang máy hay còn gọi là Hố Pít là phần hố nằm dưới cùng của giếng thang; tính từ mặt sàn tầng dừng thấp nhất trở xuống. Phần hố PIT thang máy thường được thiết kế ở vị trí âm so với độ cao tự nhiên của mặt đất.
Hiện nay trên thị trường có những dòng thang máy gia đình không hố pit tuy nhiên theo các chuyên gia cho rằng để đảm bảo an toàn thang máy bắt buộc phải có hố pit. Những dòng thang máy không hố pit thường là thang nhập khẩu.
Sử dụng thang máy không cần hố pit cũng có những nhược điểm nhất định như:
- Chi phí cao
- Khó khăn trong công tác sửa chữa, bảo trì phần dưới đáy cabin.
- Tốc độ chậm.
- Chỉ áp dụng được với những công trình nhà ở tối đa có 5 điểm dừng.
bảng vẽ thang máy gia đình
Bảng vẽ thang máy là một tài liệu kỹ thuật rất quan trọng thể hiện các kích thước hố thang. Hiện nay có rất nhiều hãng thang máy, mỗi hãng với thiết kế riêng sẽ có những kích thước hố thang khác nhau. Tuy nhiên để có một hố thang đáp ứng tiêu chuẩn của thang máy thì các hãng đều có một áp dụng tiêu chuẩn chung.
Mỗi loại thang máy, mỗi hãng sản xuất có kích thước khác nhau và thông thường khi ký kết hợp đồng mua thang máy, Quý khách hàng sẽ ký song song bản vẽ xác nhận thiết kế hố thang máy và phía đơn vị cung cấp thang sẽ có trách nhiệm phối hợp với phía kiến trúc xây dựng để đảm bảo hố thang máy chính xác từ khâu thiết kế cho đến khâu thi công.

Quý khách có thể tham khảo bảng vẽ của chúng tôi ở trên. Hoặc cần giải đáp chi tiết vui lòng liên hệ hotline.
Thang máy gia đình Vách kính - Xu hướng mới

Thang máy kính quan sát
Thang máy kính gia đình hay còn được gọi với cái tên là thang máy lồng kính hay thang máy quan sát. Kết cấu xung quanh của thang máy vách kính bốn mặt đều từ kính cường lực. Loại thang máy này thường được các chủ đầu tư lựa chọn cho các tòa nhà, cao ốc bởi có tính thẩm mỹ cao, lại độc lạ tạo nên đẳng cấp sang trọng, mới lạ cho tòa nhà.
Về cơ bản thang máy kính có cấu tạo và hoạt động giống với loại thang máy tải khách thông thường. Điều khác biệt duy nhất, thay vì phải đổ cột hố thang bằng bê tông thì thay vào đó ta sẽ dựng bằng khung thép và tường gạch sẽ được thay thế bằng kính trắng hoặc kính màu.
Ưu điểm:
- Tiết kiệm diện tích. Tiết kiệm được 30cm về chiều rộng và 30cm chiều sâu so với hố xây dựng
- Lấy ánh sáng từ ngoài vào do 4 vách hố thang vật liệu sử dụng là kính cường lực
- Đa dạng bởi sự lựa chọn màu kính. Kết hợp với tông màu nội thất làm nổi bật không gian gia đình bạn
Giải đáp thắc mắc về thang máy
Từ những kinh nghiệm mà chúng tôi có được trong việc tư vấn thang máy cho khách hàng chúng tôi sẽ đưa ra những gợi ý để mọi người tìm hiểu, quyết định và lựa chọn được loại thang máy phù hợp cho gia đình bạn.
- Thang máy phù hợp với số lượng thành viên trong gia đình
- Mua thang máy phù hợp với không gian, diện tích ngôi nhà
- Lựa chọn dựa vào xuất xứ sản phẩm
- Lựa chọn thang máy dựa vào thiết kế phòng máy
- lựa chọn thang máy theo nhu cầu tài chính
- Lựa chọn thang máy tại đơn vị cung cấp uy tín
Theo thống kê, tai nạn thang máy là vô cùng hy hữu, với tỉ lệ xảy ra tai nạn khi đi thang máy chỉ ở mức 0.00000015%, tức là khoảng 6,7 triệu lượt thang máy di chuyển thì mới có một lượt xảy ra tai nạn.
Qua đó có thể thấy, việc di chuyển bằng thang máy là rất an toàn so với các phương tiện di chuyển khác. Dù vậy, khi xảy ra sự cố lại luôn khiến xã hội bất an bởi mức độ nghiêm trọng của các vụ việc.
Ước tính cứ mỗi 3 ngày, các thang máy trên thế giới vận chuyển lượng người gần bằng với dân số toàn thế giới (7 tỉ người). Điều này khiến cho thang máy trở thành loại hình vận tải được sử dụng thường xuyên nhất trên thế giới
Rất nhiều người khi lắp đặt thang máy gia đình đều băn khoăn không biết sản phẩm này có tốn điện không. Vì họ không chỉ đầu tư khoảng tiền lớn để lắp đặt mà còn phải tốn chi phí để duy trì hoạt động của nó hàng tháng. Hiểu được điều đó, chúng tôi sẽ giúp bạn trả lời câu hỏi thang máy có tốn điện không và hết bao nhiêu tiền mỗi tháng?
Thang máy ngày nay đa phần sử dụng động cơ không hộp số không có hệ số bánh răng giảm tốc và sử dụng nam châm vĩnh cửu, với công suất chỉ bằng 2/3 so với loại động cơ có hộp số nên sẽ tiết kiệm từ 30-35% điện năng tiêu thụ.
Với thang máy gia đình tải trọng 450kg sử dụng động cơ fuji không hộp số công suất 3.1KW, ngoài ra thang máy được lập trình thông minh để tự động tắt sau một khoảng thời gian nhất định nếu không có người dùng. Với tần suất sử dụng cho gia đình là khoảng 30-40 lần mỗi ngày vì thế nên lượng điện năng tiêu thụ điện là rất nhỏ, Số tiền điện hàng tháng trung bình ở con số 350.000 nghìn đồng/ tháng.
Hiện trên thị trường Việt Nam có 3 thương hiệu thang máy nổi tiếng thế giới đó là:
Thang máy FUJI: Rất nổi tiếng ở việt nam vì chất lượng cao, nhiều chủng loại và mẫu mã, giá thành cũng vừa phải, phù hợp với túi tiền của người tiêu dùng Việt Nam. Đặc biệt thang máy gia đình Fuji chất lượng và uy tín được khẳng định qua thương hiệu bên cạnh đó giá lại hợp lý cùng giá linh kiện thiết bị chính hãng giá cạnh tranh và dễ mua nên thuận tiện cho quá trình sử dụng, bảo trì bảo dưỡng thang máy và sửa chữa thang máy.
Thang máy Mitsubishi :Là thương hiệu thang máy của Nhật bản nên giá thành lại khá là cao thường đặt chất lượng đi đôi so với các dòng thang máy khác nên hiệu quả độ an toàn, uy tín và tin cậy cao hơn.
Thang máy Otis: Là thương hiệu thang máy hàng đầu của mỹ, tuy nhiên lại có giá thành khá cao so với các hãng khác.
Để chọn được vị trí lý tưởng nhất cho thang máy, khách hàng cần dựa trên sự thuận tiện cho nhu cầu sử dụng của tất cả thành viên trong gia đình, tính thẩm mỹ, diện tích, cấu trúc ngôi nhà, thiết kế nội thất, phong thủy,.. Một chiếc thang máy được lắp đặt đúng vị trí phù hợp sẽ phát huy tối đa về tính thẩm mỹ, tạo vẻ đẹp hài hòa cho không gian căn nhà.
- Thang máy kế bên thang bộ: Lắp đặt thang máy cạnh cầu thang bộ được sử dụng khá phổ biến ở các công trình nhà ống, nhà phố, nhất là đối với những công trình hẹp về chiều ngang nhưng có chiều sâu lớn.
- Vị trí lắp ngoài trời: với những ngôi nhà có diện tích bên trong nhỏ, nhà xây dựng cũ mà không muốn cải tạo nhà, nhà có view bên ngoài đẹp.
- Vị trí giếng trời giữa lòng thang bộ sẽ tối ưu được diện tích và công năng ngôi nhà. Đặc biệt khi lắp thang máy khung kính ở vị trí này còn giúp ngôi nhà vừa lấy được ánh sáng ở giếng trời vừa làm nổi bật được sự hiện diện của sản phẩm trong ngôi nhà.

