Đại đa số khách hàng khi có nhu cầu lắp đặt thang máy đều rất băng khoăn không biết các thông số kích thước hố thang, kích thước cabin, độ rộng cửa… bao nhiêu là phù hợp? Hiểu được lo lắng này bài viết dưới đây chúng tôi chia sẽ những thông số về kích thước thang máy gia đình theo tiêu chuẩn.
Kích thước thang máy gia đình Chuẩn
Đối với thang máy gia đình, trước khi mua thang máy chủ nhà cần biết được kích thước hố thang máy để xây dựng phù hợp với kiến trúc ngôi nhà và tải trọng mong muốn. Với các công trình đã xây dựng từ trước và không có hố thang thì khi lắp đặt thang máy sẽ gặp nhiều khó khăn như tìm vị trí để đặt thang và không gian đặt thang quá nhỏ bé. Vì vậy, ta cần phải tính phương án xây dựng khung hố thang máy gia đình làm sao để tối đa hóa kích thước thang máy. Trong đó, bạn cần phải biết các thông số thang máy tiêu chuẩn dưới đây.
Kích thước thang máy gia đình 300 - 350kg
Kích thước thang máy 300kg(chở 4-5 người) thường được sử dụng trong các gia đình, nhà phố, hoặc các công trình có nhu cầu vận chuyển ít người. Cụ thể, kích thước tiêu chuẩn cho thang máy tải trọng 300kg có thể như sau:
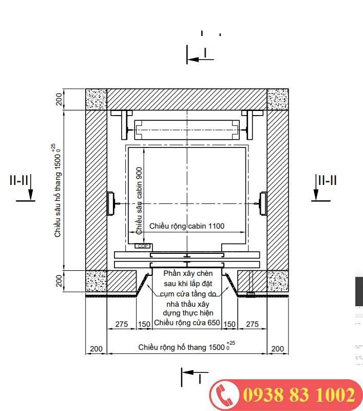
- Kích thước cabin: (rộng)1100mm x (sâu)900mm
- Kích thước cửa: (rộng)650mm x(cao)2100mm
- Kích thước hố thang (lọt lòng): (rộng)1500mm x (sâu)1500mm
- OH: từ 4000mm – 4500mm (tùy thuộc vào thiết kế cụ thể)
- PIT : tối thiểu 600mm

Kích thước thang máy 450kg
Thang máy tải trọng 450kg (chở được 6-7 người) thường được sử dụng trong các tòa nhà văn phòng, chung cư vừa và nhỏ. Kích thước thang máy 450kg chuẩn như sau:
- Kích thước cabin: (rộng)1400mm x (sâu)1000mm
- Kích thước cửa: (rộng)800mm x (cao)2100mm
- Kích thước hố thang (lọt lòng): (rộng)1800mm x (sâu)1600mm
- OH: từ 4200mm – 4500mm (tùy vào loại thang và thiết kế cụ thể)
- PIT : tối thiểu 600mm


Kích thước thang máy Mini
Nếu nhà bạn có không gian hạn chế hoặc không đáp ứng được các yêu cầu kích thước tiêu chuẩn, hãy liên hệ với nhà cung cấp thang máy để được tư vấn và nhận bản vẽ kỹ thuật chi tiết, từ đó chọn ra phương án lắp đặt phù hợp nhất.
Thang máy gia đình mini thường được sử dụng trong gia đình có diện tích nhỏ và yêu cầu tải trọng thấp. Thông thường, thang máy gia đình mini có tải trọng từ 200kg – 250kg đi từ 2-3 người. Dưới đây là kích thước thang máy gia đình mini tham khảo:
- Kích thước cabin: (rộng)800mm x (sâu)950mm
- Kích thước cửa: (rộng) 600mm x (cao)2000mm
- Kích thước hố thang (lọt lòng): (rộng)1300mm (rộng) x (sâu)1300mm
- OH: từ 3200mm
- PIT: tối thiểu 450mm.
Với sự ra đời của thang máy mini(thang máy homelift) các công trình không cần tốn quá nhiều không gian cho việc lắp đặt thang. Bạn chỉ cần hơn 1m2 là có thể bố trí lắp thang máy mini. Theo đó, nếu là công trình xây mới thì chúng ta có thể bố trí thang máy ở các khu vực như:
- Ở giữa cầu thang bộ
- Bên cạnh cầu thang bộ
- Vị trí cuối nhà
>> Xem thêm : Thang máy homelift

Kích thước thang máy tải khách
Thang máy tải khách là loại thang máy công cộng phổ biến được sử dụng trong nhiều loại công trình như văn phòng cho thuê, căn hộ chung cư mini, khách sạn, trường học. Với các dòng thang máy tải khách tải trọng từ 630, 800, 1000kg Quý khách hàng vui lòng tham khảo thêm bảng thông số kích thước bên dưới.

Yếu tố ảnh hưởng đến kích thước thang máy
- Loại thang máy (gia đình, tải khách, bệnh viện, tải hàng, v.v.)
- Tải trọng yêu cầu: Thang máy có tải trọng lớn hơn thì cần kích thước cabin và hố thang lớn hơn.
- Số tầng của công trình: Càng nhiều tầng, yêu cầu kỹ thuật về chiều cao phòng máy hoặc chiều sâu hố PIT càng cao.
- Loại thang có phòng máy hay không: Thang máy có phòng máy thường yêu cầu thêm không gian trên cùng để đặt máy kéo và thiết bị.
Công thức tính kích thước độ rộng cửa thang máy
Cửa 2 cánh mở tim (2CO)
Kích thước giếng thang = (Kích thước cửa tầng x 2) + 60mm+ 80mm (VD: Muốn làm thang máy kích thước thông thủy cửa tầng là 700mm thì kích thước thông thủy giếng phải là (700×2)+60+80 = 1540mm )
Cửa 2 cánh mở lùa (2SO)
Kích thước giếng thang = ( Kích thước cửa tầng X 1.5) + 300mm (VD: Muốn làm thang máy kích thước thông thủy cửa tầng là cửa 600mm thì hố rộng là (600×1.5)+170mm+80mm = 1150mm )
Đặc biệt, thang máy có chiều sâu hố pit thấp hơn tiêu chuẩn, hoặc chiều cao tầng trên cùng thấp hơn tiêu chuẩn vui lòng liên lạc với chúng tôi để được tư vấn và nhận bản vẽ kĩ thuật phù hợp
Các phương thức xây dựng hố thang
Cấu trúc bê tông tường gạch
Khung thép hình U,I,V
Thép chấn liên kết bulon

